
As we spend more time indoors due to the repercussions of the pandemic, consequently, we’ve had more time to spare — or at least reflect and focus on ourselves. Staying indoors has allowed people to explore hobbies, try out new recipes, and even have the time to crunch in that extra hour of cardio — a productive way of making up for lost time spent in transit from home to work and back. However, being confined in our own homes also means seeing the same thing over, and over again. No longer do we have the ease of taking a short walk outside or a quick weekender trip outside the city. With this, exploring urban gardening and beautifying one’s own homes/spaces with indoor plants have also become prevalent — evident in how people’s stories and feed have been filled with anecdotes about their newfound love for plants.
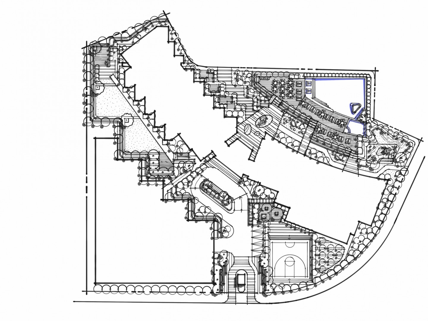
But for Erick Yambao, this is no new thing. He has had an affinity towards greenery a long time ago borne out of the fact that he has always noticed how there’s a lack of beautiful green spaces everywhere. Frustrated but at the same time inspired, he started Plontur, an architecture firm that focuses on creating spaces where people and nature grow. Majoring in Landscape Architecture, Erick has worked with several clients, creating spaces designed around nature.
This is Erick’s vision — manifested through his work with Plontur, the firm focuses on creating spaces that are designed around nature. Starting the company late 2017, he first started doing most of the design and production work, along with conceptualizing and executing the ideas. Along the way, Plontur grew. He now works with a mix of young talents and experienced professionals from different backgrounds as he focuses on the business development and management of Plontur all while still being involved with the overall design direction for majority of the organization’s projects. Aside from this, they’ve also been doing advocacy work where they envision how Metro Manila would look like with more open spaces and more greenery through urban planning.
Urban planning, also known as environmental planning, acts as a guide for the community’s future. Not only does it help determine the shape of roads, architectural styles, and number of parks, but it also determines how people living in the community will have access to their jobs, how much pollution would be generated, and the types of transportation the community will have to help people interact with their spaces. Urban planning is necessary to help sustain and improve communities.

Plontur has worked with large-scale design works like the landscape master plan for DLSU Laguna, to residential projects that are more intimate — working around architecture, nature, and art. “We like it when our clients think about how the development will affect the users and the community around it. It speaks of their values and it makes us want to do better. These are the clients we want to work with, people who have the same values as we have,” he shared.
And his desire of envisioning Metro Manila having more open spaces and greenery doesn’t just apply on a macro perspective. On a more granular view, this also applies to our own personal homes and spaces — especially now that we have little choice but to confine ourselves in our homes. “I believe that we are inherently craving for a connection with nature. Man was created in a garden, somewhere along our journey, we lost touch with nature and humanity. We’re just here to bridge the gap.”
When asked why he believes strongly in the power of nature in improving the quality of our lives, he owes it to both scientific and anecdotal evidences — whether it’s physical, mental, or emotional. “I believe that everything we need, we can find in nature. Food and shelter are a few things that come to mind. So is the sense of freedom, peace, security, and contentment. We get that when we’re closer to nature,” he said. He further expounded that when he used to struggle with his mental health, planting time served a therapeutic role. Furthermore, pre-pandemic, he made sure to take his daughter to the beach for a couple of days every once in a while, and immediately feel refreshed and relaxed.
“Of course not having to work has its effects but the environment that we were in had a big impact as well,” he explained. Now during the pandemic, this tradition turned to a bonding time between him and his daughter when they go to the park. “You can see the difference in her demeanor when we’re outside, even when we’re not doing anything. She seems happier.”
On top of his anecdotal evidences, extensive research by NASA has revealed that houseplants can remove up to 87 per cent of air toxin in 24 hours. Not only will plants help with purifying air, but studies have also proven that indoor plants improve concentration and productivity by up to 15 per cent, reduce stress levels, and boost one’s mood.
As we go through quarantine and adjust to longer periods of isolation and social distancing we have to try making better spaces to improve our home life. Erick suggests making room for nature — starting with any open and free space. From there, fill the space with a few plants, or even explore growing your own herb or vegetable garden. Not only will this provide us a pleasing scenery, but it would also help purify the air around you. Start simple like planting herbs like sweet basil and rosemary — plants which are easy to take care of. They could help green up your space and even enhance your home-cooked meals, too. If herbs aren’t for you, you may try indoor plants. The famous Snake Plant is known to survive the toughest conditions and would not need much attention when it comes to maintenance.
If you’re lucky enough to own a bigger space, try to surround yourself with some more greens. “Don’t cut down that huge tree if it’s in the middle of your property, try to build around it and make it a focal point of the architecture,” he mentions. In the city, people tend to maximize space with steel and concrete, however, Erick believes that if we allocate more spaces for greens, we increase the value of our land, and it would be better in the long run.

When asked about making spaces better through nature, Erick shares, “I started Plontur because I wanted to contribute something relevant to society as a whole. If we want to see an ideal Metro Manila, we need to be more aware of the effects of what we are doing. It starts with planning and designing for generations to come, and building our spaces that would benefit everyone, whatever social class you’re in.”
Long-term planning is key. We need to think and plan for generations beyond ours. With our current pace right now, Metro Manila wouldn’t be livable in a couple of decades. “If we have a healthy city and we practice a more conscious approach to development, we will attract better businesses and better people to invest in our country. Taking care of what we have and the environment around us, says a lot about our values and what we believe in as Filipinos. What is good for the environment is good for people and for the economy,” he shared.















